1、安装了内浮盘的油罐,装置的前端固定在内浮盘上或利用自身浮箱,在内浮盘上设立浮管滑板,产生吸附浮动作用;
2、没有安装内浮盘的油罐,装置的前端特别设计了方形或圆形浮箱,整个浮动装置随罐内液体上升和下降,装置前端管口位于液面下约200mm。当发(放)油作业时,能保证放出(抽取)的油为储罐内位于液体上层洁净的油。本装置特别设计有防涡流入口,不会在液面产生涡流。
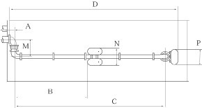
通过浮筒或内浮盘产生的浮力使旋转接头运动,其一端连于油罐底部出油短管上,另一端同浮筒吊在液面下,并随液面升降而上下浮动,可确保出油装置的出油吸口在储油罐内随油液面上下浮动,始终抽取表面油品,保持抽吸储罐内高油液位的清洁,水分、杂质在重力场的沉降作用,上层油品的水分和杂质始终低于底部油层沉积在储罐底部液体层内的水分、残渣不会被夹带出储罐,从而保证了出油品的质量,所以,浮动出油装置适用于各类卧式、立式储罐使用,能保证发出较洁净的油品,延长下游净化设备的使用寿命,具体性能如下:
1、适用介质:煤油、汽油、柴油、重油等油品。
2、公称直径:DN50-DN300
3、公称压力:PN1.6Mpa- PN2.5Mpa
4、上举摆角:0-75°
5、安装要求:结构组件,方便从油罐人孔出入。
6、具有防涡流措施和自渗灌油功能,既可向油罐内注油,也可向油罐外发油。
用户可以根据以下技术要求选型
1.油罐类型(立式或卧式)
2.油管口径(外径壁厚)
3.出口管法兰的压力等级及标准
4.油罐直径
5.油罐油品液位高度
6.油罐罐底坡度
7.出口管中心距罐底部高度
备注:当储油总高度小于油罐直径时,浮动出油装置主管为1节;当储油高度大于油罐直径时,浮动出油装置主管为2节。

|
DN
|
流量m3/h
|
A
|
B
|
C
|
D
|
E
|
M
|
N
|
P
|
油罐直径m
|
装油高度m
|
|
50
|
20
|
根据用户的油罐尺寸(或要求)制造
|
|||||||||
|
65
|
30
|
||||||||||
|
80
|
80
|
||||||||||
|
100
|
120
|
||||||||||
|
150
|
150
|
||||||||||
|
200
|
300
|
310
|
7700
|
14400
|
16500
|
150~300
|
850
|
320
|
1320
|
14
|
17
|
|
250
|
500
|
250
|
8000
|
14800
|
16500
|
150~300
|
900
|
320
|
1320
|
14
|
17
|
|
300
|
750
|
300
|
7700
|
14800
|
16500
|
150~300
|
1010
|
320
|
1320
|
14
|
17
|
注意事项
1.浮动出液装置应在储罐试水后安装;
2.保持回转接头轴线水平;
3.做好静电跨接;
4.调节各支撑腿的高度,使支撑腿有效地与罐底接触,并使浮管基本处于水平状态或略有仰角;
浮动出液装置首次使用或储罐清洗后重新投入使用,若储液不能正常出液,则浮管内存有空气。可采用关闭储罐出口阀,让浮动出液装置在液体中静止10 ~ 20 小时的方法,浮管就可自动充满液体,或者采用从储罐出液管向浮动出液装置充液的方法,排出管内空气。
